Pentaplex

LIEU
Gurmels, Fribourg

ANNÉE
2024-2026

TECHNIQUE
Électricité, Domotique, IRVE

MANDAT
Planification SIA, Soumissions, Comparatifs 

Projet-Pont-de-la-Glâne-Bureau-d_Ingénieur-Électricien-Impulse-Sàrl

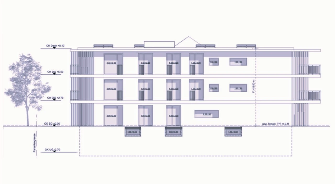
Une PPE d’exception en terrain complexe

Ce projet de 5 appartements (PPE) à Gurmels se distingue par son niveau de standing élevé et son intégration domotique complète. La complexité majeure du mandat résidait dans la situation du bâtiment en zone inondable, imposant une conception technique spécifique pour sécuriser les infrastructures.

En collaboration étroite avec le maître d’ouvrage, nous avons dimensionné une installation électrique robuste, capable de pallier les risques du terrain tout en offrant aux acquéreurs un confort moderne et connecté, conforme aux standards suisses supérieurs.

GESTION & SOUMISSIONS

Rédaction des cahiers des charges, appels d’offres et comparatifs financiers neutres pour sécuriser le budget du maître d’ouvrage.

PLANIFICATION ÉLECTRIQUE

Conception intégrale des réseaux (fort/faible) sur-mesure, dimensionnée pour répondre aux standards élevés d’une PPE de standing.

DOMOTIQUE & CONFORT

Intégration d’un écosystème Smart Home complet pour le pilotage centralisé (lumières, stores, chauffage) et le confort des acquéreurs.

SÉCURITÉ & TERRAIN

Ingénierie spécifique pour adapter et sécuriser les infrastructures électriques face aux contraintes de la zone inondable.

COORDINATION CVC (PAC)

Dimensionnement de l’alimentation de puissance et gestion des interfaces MCR (régulation) pour la Pompe à Chaleur.

MOBILITÉ ÉLECTRIQUE (IRVE)

Déploiement d’une infrastructure de recharge (IRVE) évolutive et gérée dynamiquement pour les 5 places de parc.